X.94

If an area be contained by a rational straight line and a fourth apotome, the side

of the area is minor.

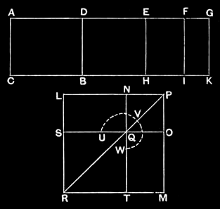
For let the area AB be contained by the rational straight line AC and the fourth apotome AD; I say that the side of the area AB is minor.

For let DG be the annex to AD; therefore AG, GD are rational straight lines commensurable in square only, AG is commensurable in length with the rational straight line AC set out, and the square on the whole AG is greater than the square on the annex DG by the square on a straight line incommensurable in length with AG, [X.def.3.4]

Since then the square on AG is greater than the square on GD by the square on a straight line incommensurable in length with AG, therefore, if there be applied to AG a parallelogram equal to the fourth part of the square on DG and deficient by a square figure, it will divide it into incommensurable parts. [X.18]

Let then DG be bisected at E, let there be applied to AG a parallelogram equal to the square on EG and deficient by a square figure, and let it be the rectangle AF, FG; therefore AF is incommensurable in length with FG.

Let EH, FI, GK be drawn through E, F, G parallel to AC, BD.

Since then AG is rational and commensurable in length with AC, therefore the whole AK is rational. [X.19]

Again, since DG is incommensurable in length with AC, and both are rational, therefore DK is medial. [X.21]

Again, since AF is incommensurable in length with FG, therefore AI is also incommensurable with FK. [VI.1, X.11]

Now let the square LM be constructed equal to AI, and let there be subtracted NO equal to FK and about the same angle, the angle LPM.

Therefore the squares LM, NO are about the same diameter. [VI.26]

Let PR be their diameter, and let the figure be drawn.

Since then the rectangle AF, FG is equal to the square on EG, therefore, proportionally, as AF is to EG, so is EG to FG. [VI.17]

But, as AF is to EG, so is AI to EK, and, as EG is to FG, so is EK to FK; [VI.1] therefore EK is a mean proportional between AI, FK. [V.11]

But MN is also a mean proportional between the squares LM, NO, and AI is equal to LM, and FK to NO; therefore EK is also equal to MN.

But DH is equal to EK, and LO is equal to MN; therefore the whole DK is equal to the gnomon UVW and NO.

Since, then, the whole AK is equal to the squares LM, NO, and, in these, DK is equal to the gnomon UVW and the square NO, therefore the remainder AB is equal to ST, that is, to the square on LN; therefore LN is the side of the area AB.

I say that LN is the irrational straight line called minor.

For, since AK is rational and is equal to the squares on LP, PN, therefore the sum of the squares on LP, PN is rational.

Again, since DK is medial, and DK is equal to twice the rectangle LP, PN, therefore twice the rectangle LP, PN is medial.

And, since AI was proved incommensurable with FK, therefore the square on LP is also incommensurable with the square on PN.

Therefore LP, PN are straight lines incommensurable in square which make the sum of the squares on them rational, but twice the rectangle contained by them medial.

Therefore LN is the irrational straight line called minor; [X.76] and it is the side of the area AB.

Therefore the side of the area AB is minor. Q. E. D.