X.93

If an area be contained by a rational straight line and a third apotome, the side

of the area is a second apotome of a medial straight line.

For let the area AB be contained by the rational straight line AC and the third apotome AD; I say that the side of the area AB is a second apotome of a medial straight line.

For let DG be the annex to AD; therefore AG, GD are rational straight lines commensurable in square only, and neither of the straight lines AG, GD is commensurable in length with the rational straight line AC set out, while the square on the whole AG is greater than the square on the annex DG by the square on a straight line commensurable with AG. [X.def.3.3]

Since then the square on AG is greater than the square on GD by the square on a straight line commensurable with AG, therefore, if there be applied to AG a parallelogram equal to the fourth part of the square on DG and deficient by a square figure, it will divide it into commensurable parts. [X.17]

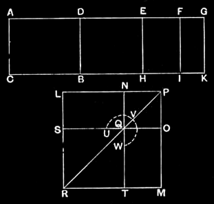
Let then DG be bisected at E, let there be applied to AG a parallelogram equal to the square on EG and deficient by a square figure, and let it be the rectangle AF, FG.

Let EH, FI, GK be drawn through the points E, F, G parallel to AC.

Therefore AF, FG are commensurable; therefore AI is also commensurable with FK. [VI.1, X.11]

And, since AF, FG are commensurable in length, therefore AG is also commensurable in length with each of the straight lines AF, FG. [X.15]

But AG is rational and incommensurable in length with AC; so that AF, FG are so also. [X.13]

Therefore each of the rectangles AI, FK is medial. [X.21]

Again, since DE is commensurable in length with EG, therefore DG is also commensurable in length with each of the straight lines DE, EG. [X.15]

But GD is rational and incommensurable in length with AC; therefore each of the straight lines DE, EG is also rational and incommensurable in length with AC; [X.13] therefore each of the rectangles DH, EK is medial. [X.21]

And, since AG, GD are commensurable in square only, therefore AG is incommensurable in length with GD.

But AG is commensurable in length with AF, and DG with EG; therefore AF is incommensurable in length with EG. [X.13]

But, as AF is to EG, so is AI to EK; [VI.1] therefore AI is incommensurable with EK. [X.11]

Now let the square LM be constructed equal to AI, and let there be subtracted NO equal to FK and being about the same angle with LM; therefore LM, NO are about the same diameter. [VI.26]

Let PR be their diameter, and let the figure be drawn.

Now, since the rectangle AF, FG is equal to the square on EG, therefore, as AF is to EG, so is EG to FG. [VI.17]

But, as AF is to EG, so is AI to EK, and, as EG is to FG, so is EK to FK; [VI.1] therefore also, as AI is to EK, so is EK to FK; [V.11] therefore EK is a mean proportional between AI, FK.

But MN is also a mean proportional between the squares LM, NO, and AI is equal to LM, and FK to NO; therefore EK is also equal to MN.

But MN is equal to LO, and EK equal to DH; therefore the whole DK is also equal to the gnomon UVW and NO.

But AK is also equal to LM, NO; therefore the remainder AB is equal to ST, that is, to the square on LN; therefore LN is the side of the area AB.

I say that LN is a second apotome of a medial straight line.

For, since AI, FK were proved medial, and are equal to the squares on LP, PN, therefore each of the squares on LP, PN is also medial; therefore each of the straight lines LP, PN is medial.

And, since AI is commensurable with FK, [VI.1, X.11] therefore the square on LP is also commensurable with the square on PN.

Again, since AI was proved incommensurable with EK, therefore LM is also incommensurable with MN, that is, the square on LP with the rectangle LP, PN; so that LP is also incommensurable in length with PN; [VI.1, X.11] therefore LP, PN are medial straight lines commensurable in square only.

I say next that they also contain a medial rectangle.

For, since EK was proved medial, and is equal to the rectangle LP, PN, therefore the rectangle LP, PN is also medial, so that LP, PN are medial straight lines commensurable in square only which contain a medial rectangle.

Therefore LN is a second apotome of a medial straight line; [X.75] and it is the side of the area AB.

Therefore the side of the area AB is a second apotome of a medial straight line. Q. E. D.