X.91

If an area be contained by a rational straight line and a first apotome, the side

of the area is an apotome.

For let the area AB be contained by the rational straight line AC and the first apotome AD;

I say that the side of the area AB is an apotome.

For, since AD is a first apotome, let DG be its annex; therefore AG, GD are rational straight lines commensurable in square only. [X.73]

And the whole AG is commensurable with the rational straight line AC set out, and the square on AG is greater than the square on GD by the square on a straight line commensurable in length with AG; [X.def.3.1] if therefore there be applied to AG a parallelogram equal to the fourth part of the square on DG and deficient by a square figure, it divides it into commensurable parts. [X.17]

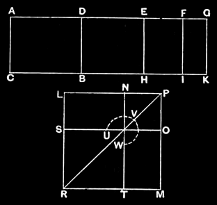
Let DG be bisected at E, let there be applied to AG a parallelogram equal to the square on EG and deficient by a square figure, and let it be the rectangle AF, FG; therefore AF is commensurable with FG.

And through the points E, F, G let EH, FI, GK be drawn parallel to AC.

Now, since AF is commensurable in length with FG, therefore AG is also commensurable in length with each of the straight lines AF, FG. [X.15]

But AG is commensurable with AC; therefore each of the straight lines AF, FG is commensurable in length with AC. [X.12]

And AC is rational; therefore each of the straight lines AF, FG is also rational, so that each of the rectangles AI, FK is also rational. [X.19]

Now, since DE is commensurable in length with EG, therefore DG is also commensurable in length with each of the straight lines DE, EG. [X.15]

But DG is rational and incommensurable in length with AC; therefore each of the straight lines DE, EG is also rational and incommensurable in length with AC; [X.13] therefore each of the rectangles DH, EK is medial. [X.21]

Now let the square LM be made equal to AI, and let there be subtracted the square NO having a common angle with it, the angle LPM, and equal to FK; therefore the squares LM, NO are about the same diameter. [VI.26]

Let PR be their diameter, and let the figure be drawn.

Since then the rectangle contained by AF, FG is equal to the square on EG, therefore, as AF is to EG, so is EG to FG. [VI.17]

But, as AF is to EG, so is AI to EK, and, as EG is to FG, so is EK to KF; [VI.1] therefore EK is a mean proportional between AI, KF. [V.11]

But MN is also a mean proportional between LM, NO, as was before proved, [X.53.l.1] and AI is equal to the square LM, and KF to NO; therefore MN is also equal to EK.

But EK is equal to DH, and MN to LO; therefore DK is equal to the gnomon UVW and NO.

But AK is also equal to the squares LM, NO; therefore the remainder AB is equal to ST.

But ST is the square on LN; therefore the square on LN is equal to AB; therefore LN is the side of AB.

I say next that LN is an apotome.

For, since each of the rectangles AI, FK is rational, and they are equal to LM, NO, therefore each of the squares LM, NO, that is, the squares on LP, PN respectively, is also rational; therefore each of the straight lines LP, PN is also rational.

Again, since DH is medial and is equal to LO, therefore LO is also medial.

Since then LO is medial, while NO is rational, therefore LO is incommensurable with NO.

But, as LO is to NO, so is LP to PN; [VI.1] therefore LP is incommensurable in length with PN. [X.11]

And both are rational; therefore LP, PN are rational straight lines commensurable in square only; therefore LN is an apotome. [X.73]

And it is the side of the area AB; therefore the side of the area AB is an apotome.

Therefore etc.